Venta Departamento 2 Ambientes Muñiz San Miguel A Estrenar

Paunero 550, Muñiz, San Miguel, Bs.As. G.B.A. Norte

  • Departamentos
  • USD 84.000 - EN VENTA
Cargando mapa...

Descripción

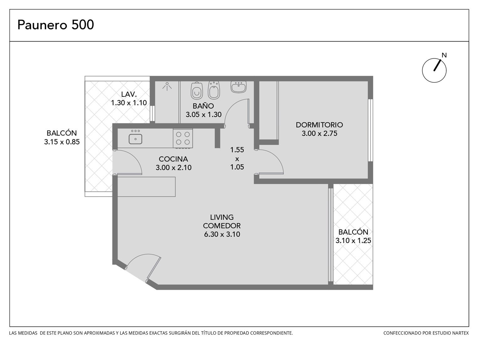
Departamento de dos ambientes. Cocina americana incorporada al living. Ventanas y puertas con salida doble balcón. Balcon frente y contrafrente. Orientación suroeste y noreste. Expensas bajas. Edificio con SUM y terraza. Ubicado en Paunero 550, Muñiz. A una cuadra de zona comercial y gastronómica. - - - Toda la información del aviso, incluyendo medidas, precio, impuestos, servicios, etc. son estimativos, sujetos a modificación y no vinculantes, según lo dispuesto en el art. 973, Cód. Civ. y Com. Toda la información del aviso, incluyendo medidas, precio, impuestos, servicios, etc. son estimativos, sujetos a modificación y no vinculantes, según lo dispuesto en el art. 973, Cód. Civ. y Com.


Detalles

Código KP445721
Categoría Departamentos
Estado Activa
Ubicación Paunero 550
Zona Muñiz
Barrio Muñiz
Localidad San Miguel, Bs.As. G.B.A. Norte
Tipo de operación En venta
Acepta permuta
Ambientes 2
Dormitorios 1
Baños 1
Piso 3
Pisos en el edificio 6
Mts totales (mt²) 54.00
Mts cubiertos (mt²) 48
Año de construcción 2025
Expensas usd 100000.00
Nueva construcción / A estrenar 1

Nuestro equipo